Продам новый дом в Молодёжном (№ 22-404-583)
Ціна: 115 000 $

Характеристики
| Ціна: | 115 000 $ |
|---|---|
| № об'єкта: | 22-404-583 |
| Тип: | будинок |
| Поверхів: | 2 |
| Спалень: | 3 |
| Площа будинку: | 150 м2 |
| Ділянка: | 10 сот |
| Рік побудови: | 23-11-2018 |
| Матеріал будівництва (тип стін): | Сіп панели |
| Дах: | Інше |
| Скління: | Металопластик |
| Наявність балконів: | Ні |
| Фасад (облицювання): | Декоративна штукатурка |
| Огорожа: | інше |
| Санвузол: | у будинку |
| канализация: | выгребная яма |
| Опалення: | електро (обігрівачі тощо) |
Адреса: Одеська, Овідіопольський, Молодьожне, Словянская
Продам новый дом в пригороде Черноморска. с.Молодёжное. Дом построен в 2018 году, 150м2, стены из СИП панелей утеплён пенопластом 10 см. Фундамент европлита с элементами пенопласта. Крыша перекрыта по новой технологии ПВХ мембрана для плоской кровли. С наружи фасад штукатурка короед селиконовый.
Дом 2 этажа, отопление тёплый пол и кондиционеры. Тариф на электричество зимний 2.88 днём и 1.80 ночью ( электросчётчик день-ночь). Вода привозная в цистерну 8 кубов и подаётся в дом гидрофором. В доме есть накопительная ёмкость 100л. Машина воды артезианской стоимость 650 грн и хватает на 3 недели. 2 ямы септик на 16 кубов .
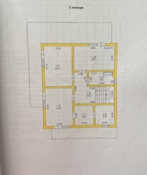
Первый этаж включает в себя большую кухню-гостиную 56.8м2, комнату, санузел и лестница на второй этаж.
Второй этаж - 3 раздельные спальни, два санузла.
Свежий ремонт по всему дому. Дом очень тёплый и экономный, в зимний период оплата электричества 900-1800 грн.
При продаже остаётся вся мебель и техника.
Во дворе плитка, есть место для машины. Много цветов и плодовых деревьев. Есть парная.
Расположен недалеко от школы, поликлиники, остановки маршруток и магазина. К городу Черноморск всего 3 км. К морю 5 км










































































