Коммерческое предложение в Монолите (№ 2-498-133)
Ціна: 35 000 $

Характеристики
Ціна: | 35 000 $ |
---|---|
№ об'єкта: | 2-498-133 |
Тип: | інше |
Поверх: | - / 10 |
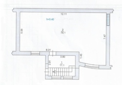
Площа: | 74,1 м2 |
Додатково: | окремий вхід |
Адреса: Одеська, Чорноморськ (Іллічівськ), Черноморск (Ильичевск), Монолит, Парусная
Коммерческое предложение в элитном ЖК монолит, Находится в подвальном помещении, с хорошим новым ремонтом, 2 санузла в плитке, площадь помещения 74 м², Высокие потолки 3 м, Также есть вентиляция, охранная система безопасности, пожарная сигнализация. Раньше было в аренде (спортивная секция). Супер предложение по хорошей цене!