Участок на Ветеране (№ 26-132-233)
Ціна: 26 000 $

Характеристики
Ціна: | 26 000 $ |
---|---|
№ об'єкта: | 26-132-233 |
Призначення: | с/г |
Площа: | 1.5 сот |
Додатково: | є під'їздні шляхи |
Адреса: Одеська, Овідіопольський, СОГ Ветеран-2, 3 линия
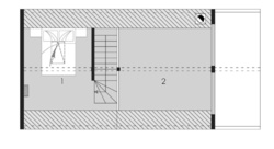
Участок 5 соток ,правильной формы, разделённ на три участка по 1,5 соток. Коробки из сиппанелей ,под коттеджи, установлены металлопластиковые окна, ведутся ремонтные работы. Цена коттеджа с лева 26 тысяч, крайнего с правой стороны 46. Площадь каждого коттеджа 40м.кв, и терраса 18м.кв
Планировка включает в себя, просторную кухню-гостиную, спальню, санузел, и террасу.
Строения не оформлены.
Коттедж по середине обшит сайдингом, внутри гипсокартон, заведены коммуникации, свет, вода , канализация. В крайнем левом тоже внутри гипсокартон, заведен свет.
Участок недалеко от бетонки ,удобный заезд ,рядом остановка ,магазины ,отличный вариант для бизнеса